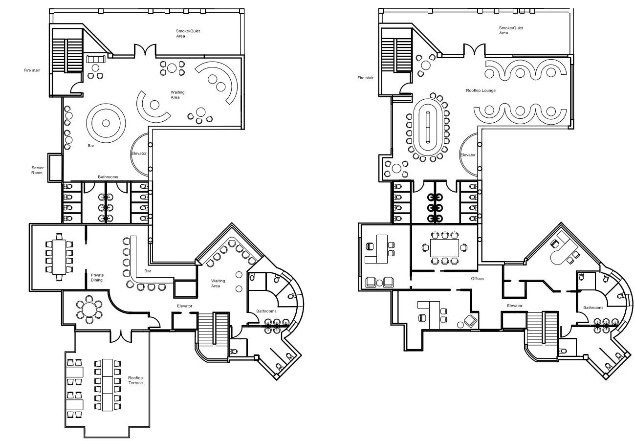
Blur Restaurant & Night Lounge
Blur reveals the luxury of Modern Art that blurs the lines between fine dining and nightlife that magnifies an exhilarating experience.
At Rose Designs, we are committed to upholding design integrity and transparency in every project. Our focus is on enhancing the user experience by considering the mental and emotional impact of a space, while also aligning with the client’s lifestyle. We approach design aesthetics with the goal of reflecting the unique personality and preferences of each client.